
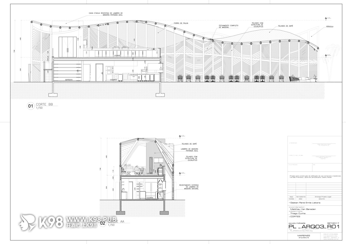
餐吧设计师采用圆形木结构,创建了一个带有许多支撑物的屋顶,这些支撑物产生了弯曲的表面,唤起了度假村和餐厅应有之名的沙丘。环境和菜单既休闲,质朴又精致,这是这个小镇美食新城的主要特征。在那里,我们的脚踩在沙滩上,我们可以享受受当地风景和原材料启发的美食和建筑。外墙和相继的柱子充当爬山虎的基础,使氛围清新而浪漫。
Ello餐吧设计图片
Ello餐吧设计图片
Ello餐吧设计图片-大厅
Ello餐吧设计图片
Ello餐吧设计图片
Ello餐吧设计图片
Ello餐吧设计图片-吧台
Ello餐吧设计图片-鸟瞰图
Ello餐吧设计轴测图
Ello餐吧设计轴测图
Ello餐吧设计平面图
Ello餐吧设计平面图
Ello餐吧设计平面图
Ello餐吧设计平面图
Ello餐吧设计平面图