位于新疆吐鲁番鄯善县的“大众娱乐广场酒吧”是一所将多元潮流音乐与酒吧文化相结合的酒吧。
	 
 
在这样一座前所未有的精神乐园里,你不仅能体验到新疆本土夜文化的“精华”,还能从现实的烦恼喧嚣中抽离到充满幻象的新疆之境。前卫的灯光视觉特效结合多元化音乐呈现,营造出一种高雅而不沉闷的娱乐氛围。脱掉演艺酒吧的“艳俗外衣”,抛开疯狂DISCO过后的“空虚寂寞”,跟着音乐尽情地摇吧!
 
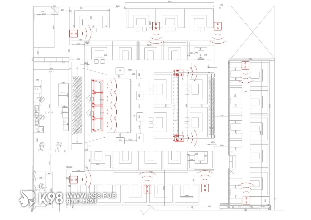
大众娱乐广场酒吧的声音重现要求极高,为了达到音乐与气氛的最佳融合,还原高品质的声音效果,在扩声方面,酒吧甄选DMX品牌音箱作为酒吧的扩声系统。
	 
	 
DMX-FX娱乐旗舰系列FX-8L双12寸三分频线性阵列音箱搭配FX-2单12寸内置两分频音箱组成舞台及中央区域扩声。FX-4双12寸内置两分频音箱确保后场直达声充足且整个场地的声场均匀。左右卡座实施点声源补声方案,由FX-3单15寸内置两分频音箱保证近场和远场保持自然流畅的统一覆盖。
 
	全频音箱布置平面图
 
	超低频音箱布置平面图
	 
	 
	 
	 
	文章来源于DMX